NEUBAU VON BÜROS UND WERKHALLE
Gefördert durch die NBank, die Europäische Union und Europa für Niedersachsen, für den Neubau von Büroflächen und den Erweiterungsbau einer Werkhalle
Pflasterfläche Betonstein
Mammut-Ökostein Ausführung für Parkplätze.
Verlegen Regenwasserkanal zum vorgeschalteten Lamellenklärer Via Tub 18L272 Zulauf-Systemschacht für Füllkörper-Rigolen und ACO-Doppelpumpstation Powerlift.
Pfahlgründung für Neubau Büro und Erweiterung Werkhalle
Tiefgründung bestehend aus 122 Pfähle gem. Vorgabe der Statik und Baugrunduntersuchung einschließlich Bewehrung und Beton nach Pfahlplan und geotechnischen Angaben.
(System Vollverdrängungsbohrpfahl Fundex)
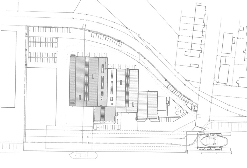
MWB Motorenwerk GmbH & Co. KG plant die Erweiterung des Werkstandorts Kanalweg 6 im alten Handelshafen Wilhelmshaven. Die Erweiterung umfasst eine neue Werkhalle sowie eine Vergrößerung und Aufstockung des bestehenden Verwaltungsgebäudes. Im Zuge des Neubaus werden bestehende Bauwerke nur im Anschlussbereich an den Neubau und bei Bedarf ertüchtigt. Die neue Werkhalle entsteht an der West-Seite der bestehenden Halle. Form und Ausbildung orientieren sich dabei am Bestand. Die Werkhalle entsteht als eingeschossiger Stahlbetonbau mit einer eingezogenen Ebene. Die Höhenlage orientiert sich am Bestand, sodass ein Übergang ohne Höhenversprung möglich ist.
NUTZUNG
Es werden die bisher bereits vorhandenen Arbeitsbereiche
neu strukturiert, neue Tätigkeiten kommen somit nicht hinzu.
Die Nutzung erfolgt im Wesentlichen eines modernen Werftbetriebes
Reparatur und Neubau aller Bereiche der Schiffsbetriebstechnik
Reparatur und Instandsetzung auf Schiffen vor Ort sowie im In- und Ausland
Umbau und Reparatur von Schiffen/Booten, Maschinen, Apparaten und Behälter jeder Art
Instandsetzen und Neuanfertigen von Segeln und Planen jeder Art sowie Takelei-Arbeiten
Prüfstände für wasserführende Pumpen nach DIN 9906
Instandsetzen von Hochdruckarmaturen und diese Prüfen
auf rechnergestützten Prüfständen bis 420 bar
Service-Partner für Sauer Compressoren J. P. Sauer & Sohn Maschinenbau GmbH Kiel/Germany
WWW.PROFIS-IN-DESIGN.DE